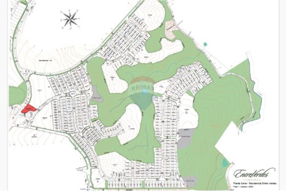
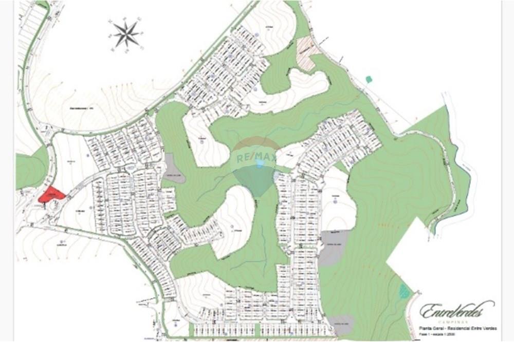
Apresento uma oportunidade única para quem busca exclusividade, conforto e contato direto com a natureza: o Lote nº 3 da Quadra L1 no renomado Residencial EntreVerdes, localizado no distrito de Sousas, em Campinas/SP.
________________________________________
🌿 Um Terreno Excepcional
     Área total: aproximadamente 2.100 m²
     Dimensões: 35 metros de frente por 60 metros de profundidade
     Topografia: plana e de formato regular, facilitando projetos arquitetônicos diversos
     Localização: frente para a Rua 12, com vizinhança consolidada e tranquila
Este lote oferece o espaço ideal para construir a residência dos seus sonhos, com ampla área para jardins, lazer e privacidade. 
________________________________________
🏡 Residencial EntreVerdes: Um Estilo de Vida Sofisticado
O EntreVerdes é um condomínio de alto padrão que harmoniza luxo, sustentabilidade e qualidade de vida. 
🌳 Natureza e Sustentabilidade
     Mais de 1 milhão de m² de áreas verdes preservadas
     10 nascentes e 67 mil mudas de espécies nativas
     Trilhas ecológicas com 8,5 km para caminhadas e corridas
🏊♂️ Lazer e Bem-Estar
     Clubes privativos com piscinas adulto e infantil, incluindo piscina coberta aquecida com raia de 25 metros
     Quadras de tênis, poliesportivas, beach tennis e campos de futebol
     Academia moderna, sauna, espaço gourmet, brinquedoteca e playgrounds🔒
 Segurança e Infraestrutura
     Portarias independentes com controle de acesso rigoroso
     Monitoramento por câmeras e sistema avançado de segurança
     Fiação subterrânea, internet por fibra óptica e gás encanado
📍 Localização Privilegiada
     Acesso facilitado às rodovias Dom Pedro I, Anhanguera e Bandeirantes
     Próximo aos shoppings Iguatemi e Galleria, Colégio Notre Dame e clubes renomados
     A apenas 12 minutos do Cambuí e 18 minutos do centro de Campinas
________________________________________
✨ Por Que Escolher Este Lote?
Este terreno é ideal para quem deseja construir uma residência personalizada em um ambiente que oferece o equilíbrio perfeito entre natureza e comodidades urbanas. A ampla metragem proporciona liberdade para projetos arquitetônicos arrojados, com espaço de sobra para áreas de lazer, jardins e muito mais.
________________________________________
📞 Agende Sua Visita
Não perca a chance de conhecer pessoalmente este lote exclusivo no Residencial EntreVerdes. Entre em contato para mais informações e agendamento de visitas.
Terreno à venda no Loteamento Residencial Entre Verdes, Região Sudeste, Brasil - Preço Reduzido!
Descubra um dos mais promissores terrenos disponíveis para venda nesta região estratégica. Situado na prestigiada Rua Kamesaburo Yoshida, ao lado do renomado clube do Residencial Entre Verdes, este terreno oferece uma oportunidade única para investimento ou construção do seu sonho de moradia.                                                                                                                                                           
Localizado em uma área semi-residencial, o lote está perfeitamente posicionado para quem busca tranquilidade sem abrir mão da conveniência de estar próximo a uma metrópole. Imagine desfrutar de um clima quente, ideal para aposentadoria, e aproveitar o melhor do interior do Brasil, com infraestrutura urbana acessível.
A região é reconhecida por sua qualidade de vida invejável, sendo um ponto de interesse crescente para investidores e futuros residentes. Com o preço reduzido, esta é uma oportunidade rara para adquirir um pedaço de terra em uma das áreas mais desejadas do Loteamento Residencial Entre Verdes.                                            
Não perca a chance de garantir seu espaço em um dos cenários mais pitorescos da região, ideal para transformar seus planos em realidade. Agende uma visita e venha conhecer pessoalmente o potencial que este terreno espetacular oferece!
Entre em contato conosco hoje mesmo para mais informações**