Terreno - Venda - Ribeirão Preto , São Paulo

Terreno com 728,56m² no Reserva do Ipê - Vila do Golfe

R$ 2.049.000 InStock
 
Rua Albert Amim Sader , S/N - Vila do Golf , Ribeirão Preto , São Paulo , 14027-520
Ótimo Preço
Data disponível: 06/12/2022
ID: 780091110-33
Ambientes Totais
1
Total M²
728,56
Área Útil
728,56
Ano/ Mês de Construção
2025/09

Piso
Piso Térreo
Uso do terreno designado para
Área semi-residencial
Descrição do bairro

A localização é considerada privilegiada, com acesso a vias importantes como a Av. Luiz Eduardo Toledo Prado, o que facilita deslocamento para outras partes da cidade. Próximo de comércios e serviço variados como:

- Shopping Iguatemi está muito próximo, oferecendo opções de lojas, alimentação e lazer.
- Supermercados, como o Pão de Açúcar e o Savegnago.
- Escolas particulares, como Liceu Albert Sabin e Escola Concept.
Valor do IPTU
R$ 356.109,60  

Características

Moderno
Condomínio fechado
Salão de Festas
Terra
Perto da Rodovia
Perto de transporte público
Perto da Rodovia
Perto de transporte público
Rua Asfaltada
Permitido fumar
Sem mobília
Não aceita sub-locação
Reconstrução
Acessível com tráfego bom
Em rua tranquila
Perto da Rodovia
Perto de Lojas
Perto de ônibus
Perto de transporte público
Perto do Hospital
Perto do parque
Perto do Parque
Vista aberta
Eletricidade
Registro de Água Individual

Ambientes

Dimensões

Tamanho do Ambiente

Layout aberto
Layout aberto
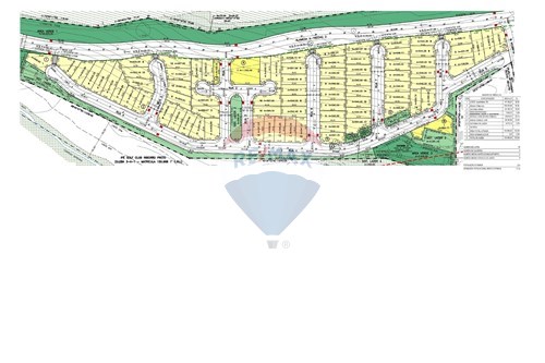
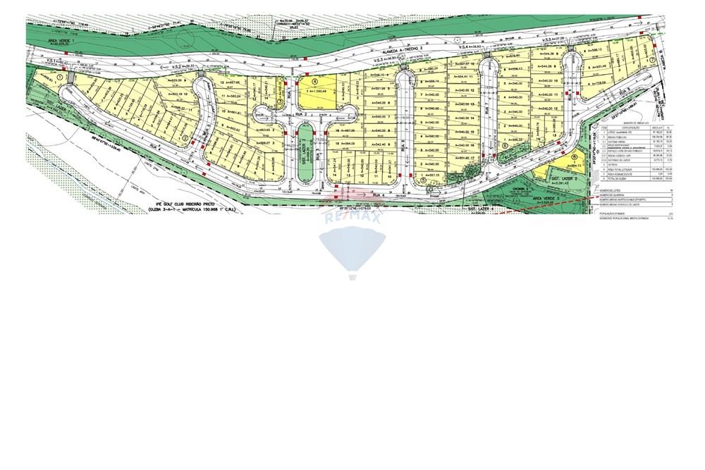
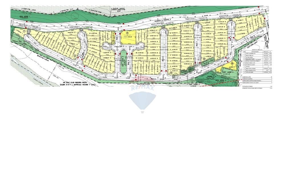
Terreno com 728,56m².

Pátio interno
Pátio interno
O condomínio conta com área comum e de esportes.

Todas as informações fornecidas pelo corretor são consideradas confiáveis, mas não são garantidas e devem ser verificadas independentemente. Nenhuma garantia ou representações é feita de qualquer tipo.
Envie sua mensagem!
Alessandra Fernandes Alessandra Fernandes Rua Maringá - 438
Ribeirão Preto, São Paulo, Brasil
14025560

Alessandra Fernandes CRECI Nº: 233642

BRL Região Sudeste RE/MAX RE/MAX REDEWE Ribeirão Preto Rua Maringá - 438
Ribeirão Preto, São Paulo, Brasil
14025560

Ver +...
Ver +...
Ver +...

ENVIAR MENSAGEM

Alessandra Fernandes Alessandra Fernandes Rua Maringá - 438
Ribeirão Preto, São Paulo, Brasil
14025560

CRECI Nº: 39450 J

BRL Região Sudeste RE/MAX RE/MAX REDEWE Ribeirão Preto

Favoritos

Compartilhar/ Comparar


Visualizado recentemente

Compartilhar/ Comparar