Descubra o futuro do seu negócio neste incrível ponto comercial/loja para locação, estrategicamente localizado no coração do Cambuí, em Campinas  uma das regiões mais valorizadas e vibrantes da Região Sudeste do Brasil. Este espaço é a oportunidade perfeita para empreendedores e investidores que desejam unir localização privilegiada, infraestrutura moderna e flexibilidade total de personalização.
Já em fase avançada de obras, esta construção nova traz diferenciais únicos que permitem ao locatário adequar o imóvel de acordo com as necessidades do seu negócio. Inclusive, quem desejar pode antecipar a entrada e realizar sua própria reforma, aproveitando o estágio atual da obra para adaptar os ambientes de forma personalizada.
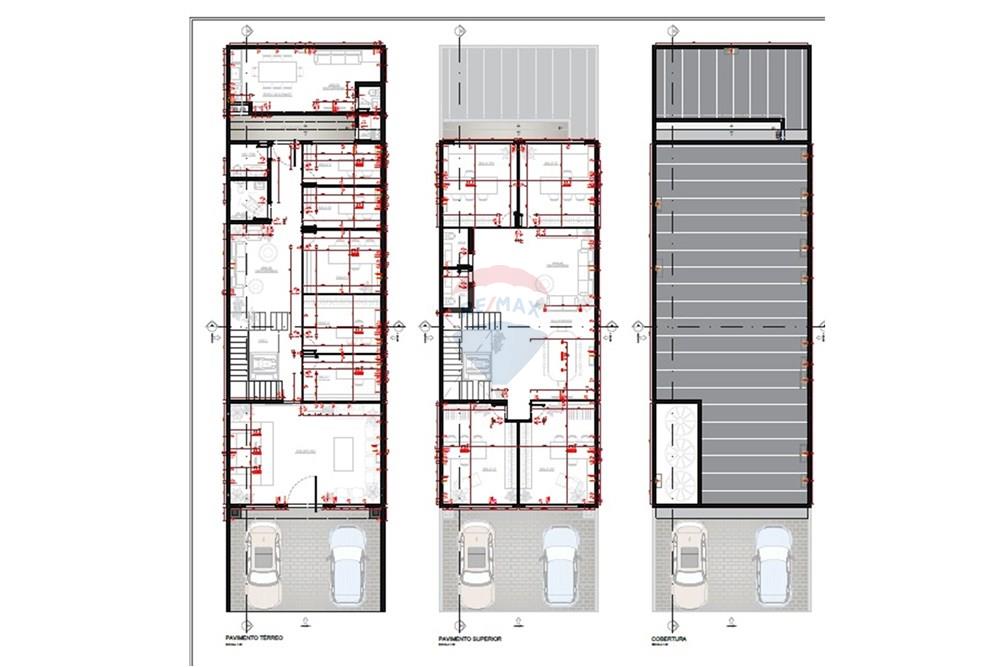
O imóvel conta com dois andares completos conectados por elevador moderno, oferecendo praticidade e acessibilidade. O projeto foi pensado para acomodar diversos tipos de negócios: escritórios, clínicas, showrooms, restaurantes, coworkings, academias ou lojas de alto padrão.
O grande destaque está no seu vão livre, que possibilita infinitas configurações. Caso o futuro inquilino deseje, é possível definir as divisões internas desde já, aproveitando a fase de obra para criar repartições sob medida. Além disso, o imóvel conta com quatro banheiros no total, sendo dois no piso térreo e dois no piso superior, garantindo comodidade tanto para clientes quanto para colaboradores.
Outros diferenciais incluem:
Estacionamento e espaço adicional para motos, facilitando o acesso e a mobilidade;
Cobertura livre que amplia as possibilidades de uso do espaço;
Cabeamento estruturado, que reforçam a funcionalidade e eficiência operacional;
Acessibilidade completa.
Localizado no Cambuí  uma rua tranquila, asfaltada e ao mesmo tempo próxima a comércio, serviços e transporte público  este imóvel se posiciona como um endereço estratégico em um bairro residencial e comercial em constante valorização.
Imagine seu negócio instalado em um edifício novo, moderno e feito sob medida para as suas necessidades. Essa é a chance de ser o primeiro a ocupar e dar vida a um espaço que será referência no Cambuí.
Seja você empreendedor, investidor ou gestor em busca de um ponto diferenciado, essa propriedade é o cenário perfeito para transformar ideias em realidade. Não perca a oportunidade de estar à frente e conquistar seu espaço em um dos bairros mais desejados de Campinas.