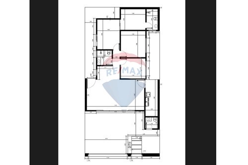
Descubra essa oportunidade em São Joaquim da Barra! Esta propriedade residencial em fase de acabamento encontra-se em avançado estado de construção e está situada no bairro Santa Isabel. Com um total de 151 metros quadrados de área útil e um terreno de 200 metros quadrados, com lote de 10 por 20 metros proporcionam espaço generoso para uma vida confortável.
A casa oferece uma combinação perfeita de espaço e oportunidade de acabamento conforme o seu gosto pessoal, apresentando 7 cômodos no total. Desfrute de 3 amplos quartos, 2 banheiros e 1 lavabo, ideal para atender às necessidades da sua família. Os ambientes integrados garantem uma excelente fluidez entre os espaços, enquanto a presença de um closet para o quarto principal adiciona um toque de luxo ao seu dia a dia.
A propriedade dispõe de ótimos recursos, incluindo 2 vagas de garagem e uma estrutura de concreto, permitindo personalizar e finalizar ao seu gosto. O hall de entrada, muito atrativo, desde o primeiro momento, enquanto a cozinha prática integrada torna o preparo das refeições mais eficiente e prazeroso.
As imagens do imóvel com acabamento foram geradas por IA para simular sugestões de como poderá ficar, não refletem a sua realidade.
Sendo o primeiro proprietário, você aproveitará as vantagens de uma construção para o acabamento dos seus sonhos. Esta residência está totalmente pronta até a laje em fase de reboco e acabamento, uma oportunidade para fazer do seu jeito.
Não perca a oportunidade de adquirir esta linda casa na Rua Helio Blezio. Venha conferir de perto e transforme este espaço na casa com que você sempre sonhou!