Prepare-se para conhecer um apartamento que combina conforto, praticidade e uma das melhores localizações do Guará I.
Se você procura um imóvel com fácil acesso às principais vias, cercado por comércio variado e pronto para morar, esta é a opção ideal.
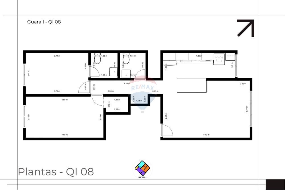
Localizado na QI 08 Bloco T, este apartamento vazado de 56 m² oferece ventilação cruzada e excelente iluminação natural, garantindo ambientes arejados, frescos e muito mais aconchegantes.
Diferenciais do Imóvel
2 quartos, sendo 1 suíte um refúgio privativo após um dia intenso.
Segundo quarto com ar-condicionado, perfeito para filhos, hóspedes ou home office.
Banheiro social moderno, atendendo área íntima e social.
Sala de estar confortável, ideal para receber amigos e relaxar.
Cozinha Reformada O Coração da Casa
Totalmente renovada, com design moderno, luminária diferenciada, conceito americano e armários planejados. Funcional e elegante, perfeita para quem gosta de praticidade e estilo.
A área de serviço independente traz ainda mais praticidade ao dia a dia.
O apartamento aproveita muito bem seus 56 m², com uma planta eficiente e um design vazado, que proporciona claridade constante e uma sensação agradável em qualquer estação.
Localização Privilegiada O Grande Destaque
Viver na QI 08 do Guará I é estar cercado de conveniência, segurança e praticidade.
Acesso Estratégico
Próximo à saída da EPTG, facilitando deslocamentos para o Plano Piloto, Taguatinga e Águas Claras.
Próximo à parada de ônibus, ampliando sua mobilidade.
Comodidades ao Redor
Superbom Supermercados a poucos metros compras rápidas e práticas.
Proximidade de excelentes escolas, ideal para famílias.
Variedade de comércio local: farmácias, padarias, restaurantes, academias, bancos e serviços essenciais.
Quadra tradicional, organizada e com ambiente familiar.
Por que este imóvel é especial?
Cozinha já reformada menos custo e preocupação para você.
Ventilação natural superior graças ao projeto vazado.
Suíte que agrega conforto no dia a dia.
Localização estratégica, garantindo tempo, comodidade e excelente custo-benefício.