Tamboré Jundiaí

Descrição

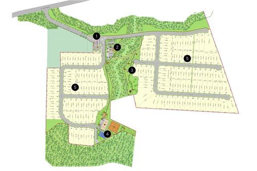
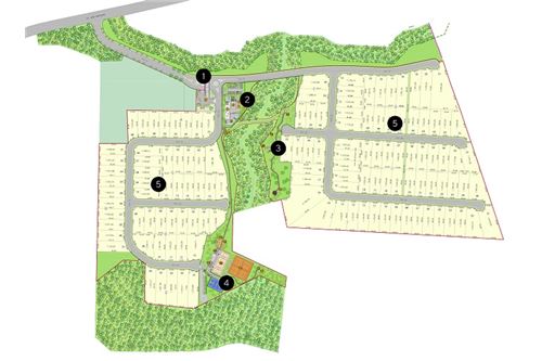
Descubra o Loteamento Tamboré Jundiaí, um empreendimento de alto padrão que redefine o conceito de morar bem, cercado pela natureza e com uma infraestrutura completa para você e sua família. Localizado na cidade de Jundiaí, em uma região privilegiada pela tranquilidade e proximidade com a capital paulista, o Tamboré Jundiaí oferece segurança, conforto e qualidade de vida. Com lotes a partir de 600m², o empreendimento é perfeito para quem busca espaço e exclusividade em um ambiente planejado. O projeto conta com uma ampla área verde preservada, proporcionando contato direto com a natureza. Além disso, possui um clube exclusivo para os moradores, equipado com piscina, quadras de tênis, espaço fitness, salão de festas e diversas áreas de lazer para todas as idades. A segurança é um dos principais pilares do Tamboré Jundiaí, com portaria 24 horas, monitoramento por câmeras e vigilância especializada, garantindo a tranquilidade que você e sua família merecem. Viva o equilíbrio entre natureza e modernidade no Tamboré Jundiaí e construa a casa dos seus sonhos em um dos endereços mais desejados da região.

Unidades disponíveis

EU IRIA Tipo Ambientes Totais Dormitórios Unidade Área (m²) Vagas de Estacionamento Preço
690791191-3 Terreno - - - 1.000 - R$ 1.000.000
630531001-1020 Terreno - - QD C 1.000 - R$ 850.000
690591001-30 Terreno - - - 1.120 - R$ 1.060.000